13 Rue Thibault
Sept-Îles
Sept-Îles
Vendu
Maison de plain-pied à vendre
Cette propriété vous offre un espace lumineux et une aire ouverte, la cour est toute clôturée et bien orientée pour le soleil d'après-midi et soirée, la chambre principale est très grande car anciennement 2 chambres, au sous-sol il y a une très grande salle familiale, une salle de lavage et du rangement. VISITE VIRTUELLE 3D disponible.
1
2
92.75m2
501.7m2
Présenté par
Kathy Doyle
Courtier immobilier
Bâtiment
Mode de chauffage
Plinthes électriques
Approvisionnement en eau
Municipalité
Énergie pour le chauffage
Électricité
Fenêtres
Bois, PVC
Fondation
Béton coulé
Sous-sol
Non aménagé, Seulement séparation pour s.de lavage et rangement
Système d'égouts
Municipal
Type de fenêtre
Coulissante, Manivelle
Construit en
1974
Dimensions
12.4m x 7.48m
Terrain
Allée
Non pavée
Aménagement du terrain
Clôturé
Revêtements
Fibre pressée
Proximité
École primaire, Parc-espace vert, Piste cyclable
Stationnement
Extérieur(2)
Toiture
Bardeaux d'asphalte
Dimensions
18.29m x 27.43m
Autres caratéristiques
Zonage
Résidentiel
Évaluation
Évalué en 2026
Inclusions
Luminaires, le lave-vaisselle restera en place mais il est non fonctionnel.Exclusions
Meubles et effets personnels.13 Rue Thibault , Sept-Îles
24053329
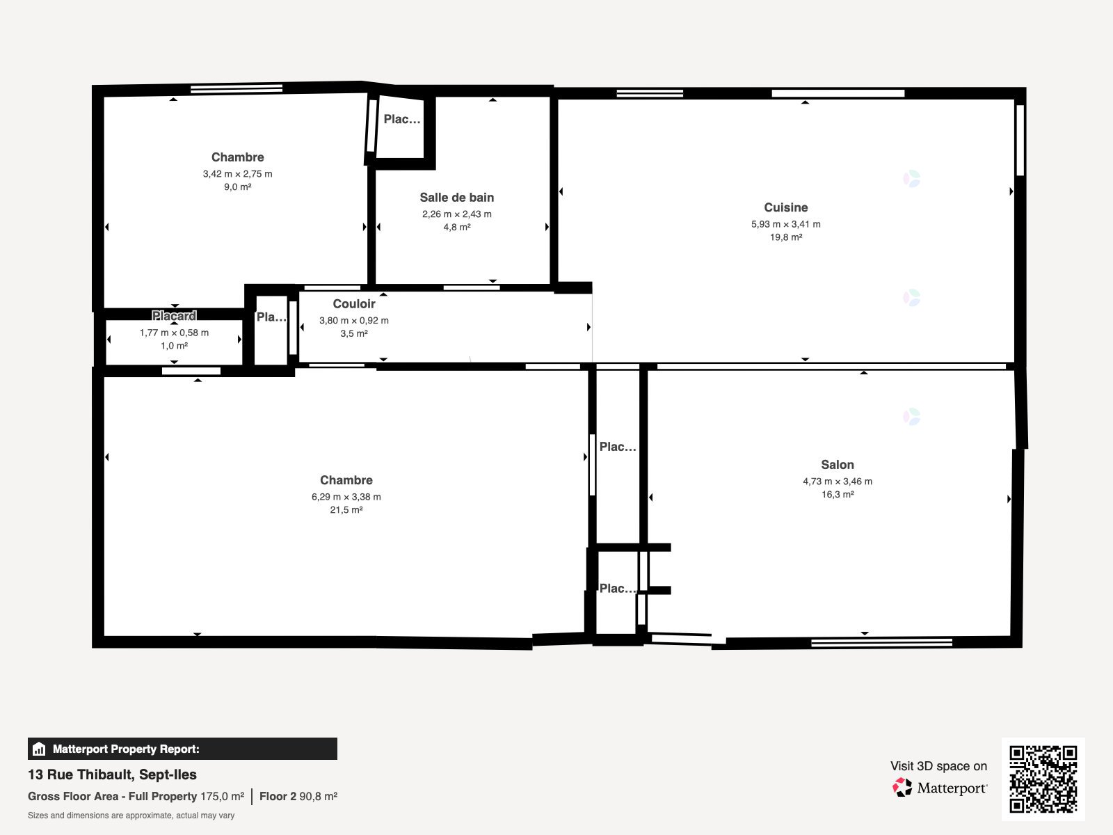
Pièces
Pièce
Étage
Plancher
Informations
Salon(15.7x11.7 pi.)
1er niveau/RDC
Bois
Cuisine(8.9x9 pi.)
1er niveau/RDC
Plancher flottant
Salle à manger(10.10x10.2 pi.)
1er niveau/RDC
Plancher flottant
Salle de bains(7.4x8.2 pi.)
1er niveau/RDC
Céramique
Chambre à coucher principale(20.9x11.6 pi.)
1er niveau/RDC
Bois
Chambre à coucher(11.3x8 pi.)
1er niveau/RDC
Bois
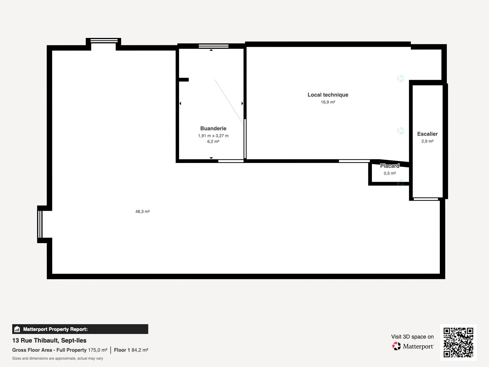
Salle de lavage(6.4x11.1 pi.)
Sous-sol
Béton
Rangement(15.9x10.11 pi.)
Sous-sol
Béton
Salle familiale(37.5x21.9 pi.)
Sous-sol
Béton
13 Rue Thibault , Sept-Îles
24053329
Photos















13 Rue Thibault , Sept-Îles
24053329
Photos















13 Rue Thibault , Sept-Îles
24053329
Photos


13 Rue Thibault , Sept-Îles
24053329
Addenda
Améliorations: - Remplacement de la porte avant en 2025; - Remplacement du bardeaux d'asphalte sur la toiture en 2025; - Ajout de clôtures sur les côtés en 2024; - Modification du garde-corps de l'escalier qui mène au sous-sol; - Ouverture entre salon et cuisine.
13 Rue Thibault , Sept-Îles
24053329
